Ponuka nehnuteľností
O nás
Tím
Zrealizované obchody
Referencie
Predať / prenajímať
Predať nehnuteľnosť
Prenajať nehnuteľnosť
Služby
Rekonštrukcie a výstavba
Financie a investície
Manažment prenájmu
Projekty
Projekt Biele Maky
Magazín
Kontakt
Ponuka nehnuteľností
O nás
Predať / prenajímať
Služby
Projekty
Magazín
Kontakt
1 / 22
1 / 22
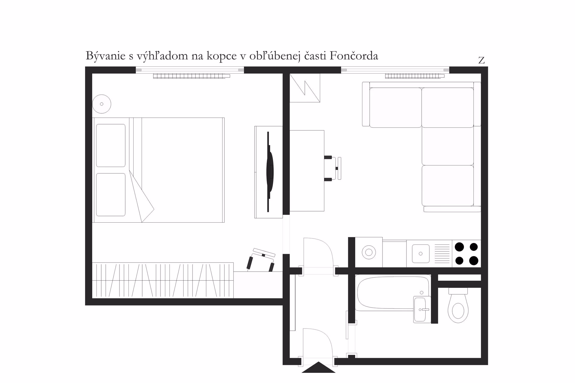
ID 1867
PRENAJATÉ Bývanie s pekným výhľadom v obľúbenej časti Fončorda
Prenájom
1 izba
38,78 m²
Banská Bystrica
Galéria
Zobraziť viac +
Nájdite svoj domov, či investíciu
ľahšie
.
Využite funkciu inteligentného zasielania ponúk podľa vlastnej selekcie.
Môj výber
Môj výber
Úspešné prenajaté nehnuteľnosti
Začali sme v roku 2015 a po súčasnosť sa naše portfólio rozrástlo o 103 prenajatých nehnuteľností aj VĎAKA VÁM
Banská Bystrica
PRENAJATÉ Elegantný 2-izbový byt vo vile s vlastným parkovaním
2 izb.
|
48.06 m²
|
2. podlažie
|
bez výťahu
Zvolen, Bystrický rad
PRENAJATÉ Komfortné bývanie v zariadenom byte v centre mesta Zvolen, Bystrický rad
2 izb.
|
55.69 m²
|
2. podlažie
|
bez výťahu
Zvolen, Prachatická
PRENAJATÉ Slnečný byt s lodžiou obklopený zeleňou
3 izb.
|
82.23 m²
|
1. podlažie
|
výťah
Banská Bystrica, Skuteckého
PRENAJATÉ Dizajnový byt so slnečnou lodžiou v novostavbe, centrum mesta
1 izb.
|
38.51 m²
|
2. podlažie
|
bez výťahu
Banská Bystrica
PRENAJATÉ Slnečný apartmán s vlastným parkovaním, Podlavice, Banská Bystrica
2 izb.
|
51 m²
|
3. podlažie
|
bez výťahu
Banská Bystrica, Trieda Hradca Králové
PRENAJATÉ Vzdušný byt v príjemnej a tichej lokalite v blízkosti parku
2 izb.
|
61.36 m²
|
3. podlažie
|
výťah
Vidieť viac
Chcem prenajať s DO DOMČEKA
Dobrý krok!
Potrebujeme už len pár informácií.
Email*
Telefón
Možnosť prenájmu
-
S manažmentom prenájmu
Bez manažmentu prenájmu
Správa
Akceptujem
zásady ochrany osobných údajov
Mám záujem o zasielanie noviniek
Odoslať
Mám záujem